Licencia de Hospedaje: vivienda y apartamentos turísticos

Desde el estudio de viabilidad, el proyecto técnico, el CIVUT, la tramitación de la licencia y las gestiones necesarias tanto con la Comunidad como con el Ayuntamiento.

Y si tienes que hacer obras para ajustar la vivienda a normativa, ¡cuenta también con nosotros!

¿Necesitas conseguir una licencia turística?

Contamos con la experiencia necesaria y sabemos anticiparnos a los posibles inconvenientes que puedan surgir. Por ello, te explicaremos todo el proceso de forma clara y transparente desde el inicio, para que puedas valorarlo con total confianza.
Te ayudaremos con todos los trámites necesarios, asesorándote en cada paso y ofreciendo la gestión integral que más te caracteriza.

Proyecto licencia de actividad apartamentos turisticos

Para poner en marcha un Apartamento o una Vivienda de uso turístico en Madrid, ya no es suficiente con obtener el permiso de la Comunidad de Madrid (Declaración Responsable, CIVUT).

Tras la modificación del Plan Especial de Hospedaje, ahora también es obligatorio contar con una Licencia Municipal de Actividad.

El Ayuntamiento exige esta licencia para rentabilizar legalmente un negocio de hospedaje, ya sea una Vivienda Turística, un hostal o un hotel.

Pasos para obtener la licencia turística

1

Proyecto técnico para solicitar la licencia

Redacción del proyecto técnico para el Ayuntamiento de Madrid o ECU.

2

Ejecución de obras y Certificado Final de Obra (CFO)

Se inician las obras y, al finalizar, el arquitecto emite el CFO.

3

Visita de comprobación del técnico municipal

Se verifica que las obras se han ejecutado conforme a la licencia.

4

Declaración Responsable de Inicio de Actividad (CAM)

Presentación ante la Comunidad de Madrid incluyendo el CIVUT.

5

Primera ocupación y funcionamiento (Ayuntamiento)

Presentación de la declaración responsable de primera ocupación y funcionamiento en la Agencia de Actividades.

Pasos para obtener la licencia turística

Proyecto técnico para solicitar la licencia

Redacción del proyecto técnico para el Ayuntamiento de Madrid o ECU.

Ejecución de obras y Certificado Final de Obra (CFO)

Se inician las obras y, al finalizar, el arquitecto emite el CFO.

Visita de comprobación del técnico municipal

Se verifica que las obras se han ejecutado conforme a la licencia.

Declaración Responsable de Inicio de Actividad (CAM)

Presentación ante la Comunidad de Madrid incluyendo el CIVUT.

Primera ocupación y funcionamiento (Ayuntamiento)

Presentación de la declaración responsable de primera ocupación y funcionamiento en la Agencia de Actividades.

Proyecto licencia de actividad de apartamentos turisticos

No dudes en ponerte en contacto con nosotros para ayudarte

Requisitos que debe cumplir la VUT (Vivienda de Uso Turístico)

Comunidad de Madrid

En la Comunidad de Madrid, el órgano responsable de las actividades de alojamientos turísticos es la Dirección General de Turismo (Viceconsejería de Cultura y Turismo, Consejería de Cultura, Turismo y Deporte).

Composición mínima

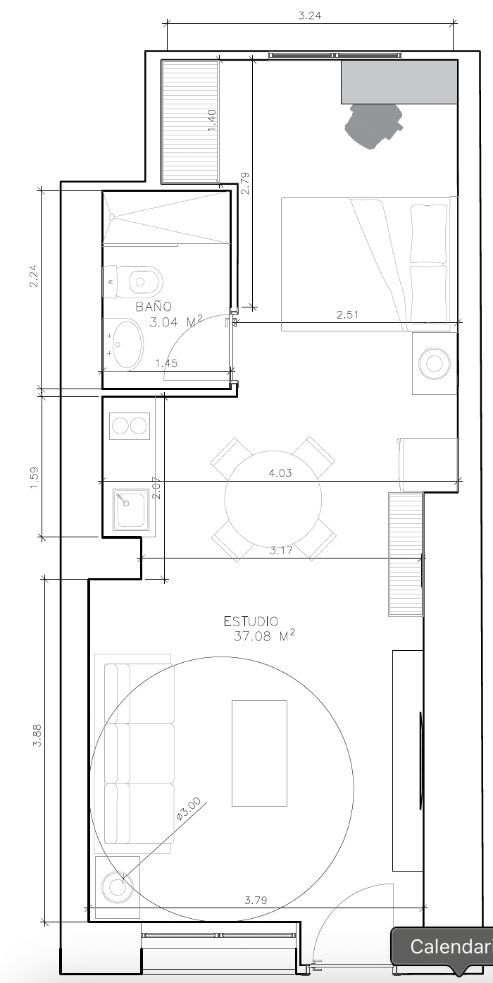
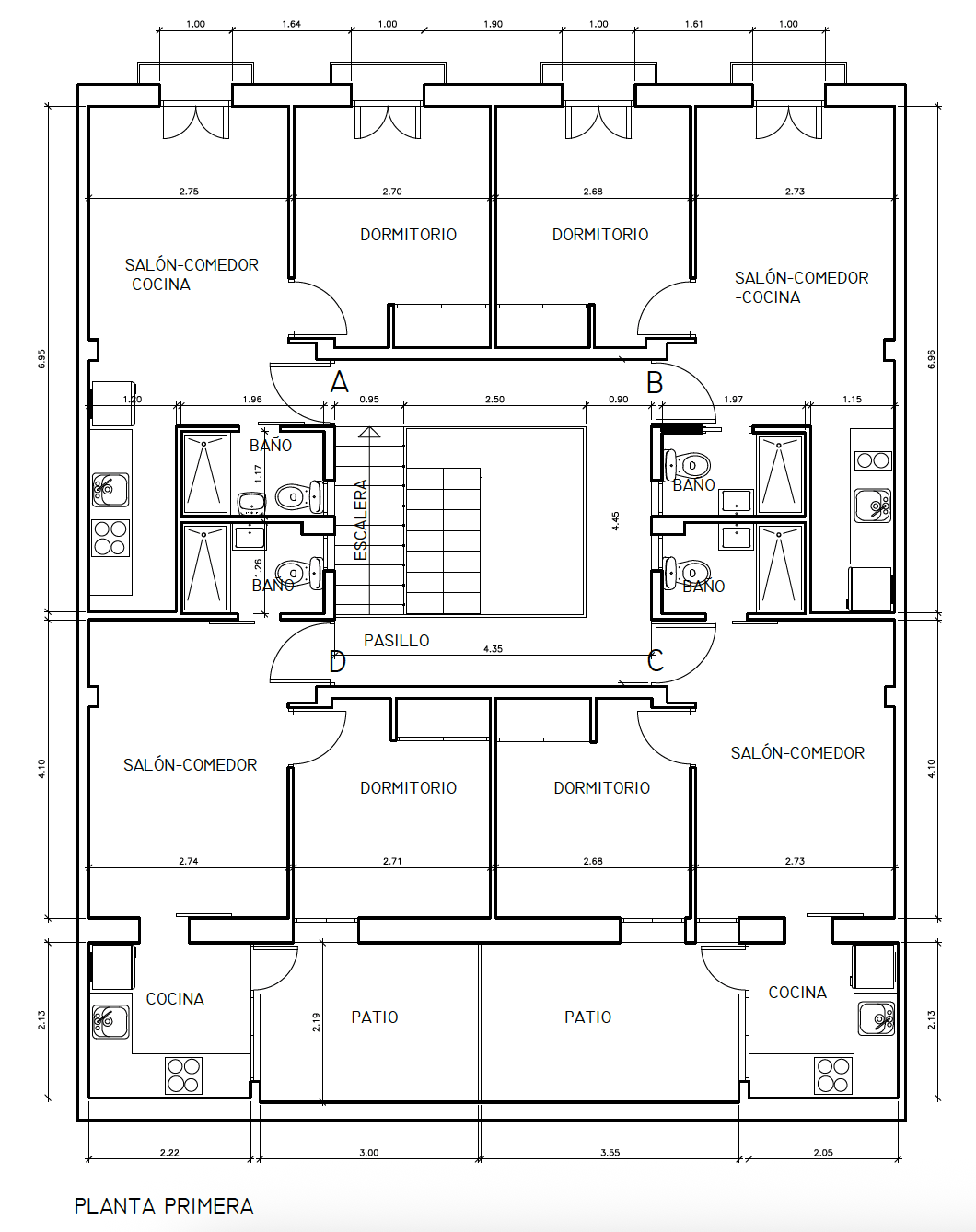
La vivienda debe contar como mínimo con salón-comedor, cocina, dormitorio y baño. Podrá denominarse “estudio” cuando el dormitorio esté integrado en el salón-comedor-cocina y tenga máximo 2 plazas.

Atención y emergencias

Debe indicarse un teléfono de atención permanente. Además, la vivienda dispondrá de un teléfono con hasta dos llamadas gratuitas a servicios de emergencia y sanitarios, con información al menos en español e inglés.

Amueblada y con hojas de reclamación

Se contratarán amuebladas, equipadas y en condiciones de uso inmediato, y deberán tener a disposición de los usuarios las hojas oficiales de reclamación.

Información de accesibilidad

Antes de contratar, el titular debe facilitar a los usuarios información sobre la accesibilidad de la vivienda.

Capacidades máximas de alojamiento

  • < 25 m² útiles: hasta 2 personas (en al menos una pieza habitable).
  • 25–40 m² útiles: hasta 4 personas (en al menos dos piezas habitable).
  • +10 m² útiles adicionales: se permiten 2 personas más en una pieza habitable independiente adicional.

Ayuntamiento de madrid

La normativa aplicable a viviendas de usos turísticos en el Ayuntamiento de Madrid es la siguiente:

  • Plan General de Ordenación Urbana de Madrid 1997, Modificación de julio de 2023. (PGOUM)

  • Código Técnico de la Edificación

Condiciones de uso terciario tipo hospedaje

Las viviendas de uso turístico también deberán cumplir con las condiciones de hospedaje:

Además de cumplir con los requisitos de la normativa sectorial aplicable deberán cumplir con las condiciones establecidas para las viviendas en la Sección Primera del Capítulo 7.3 de las NN.UU del PGOUM.

No se podrán implantar viviendas de uso turístico en parcelas cuyo uso cualificado sea el industrial o industrial en coexistencia con terciario de oficinas, salvo que la regulación de dichas parcelas admita, como uso alternativo o autorizable, el uso residencial en su categoría de vivienda colectiva.

Proyecto licencia de actividad de apartamentos turisticos

No dudes en ponerte en contacto con nosotros para ayudarte