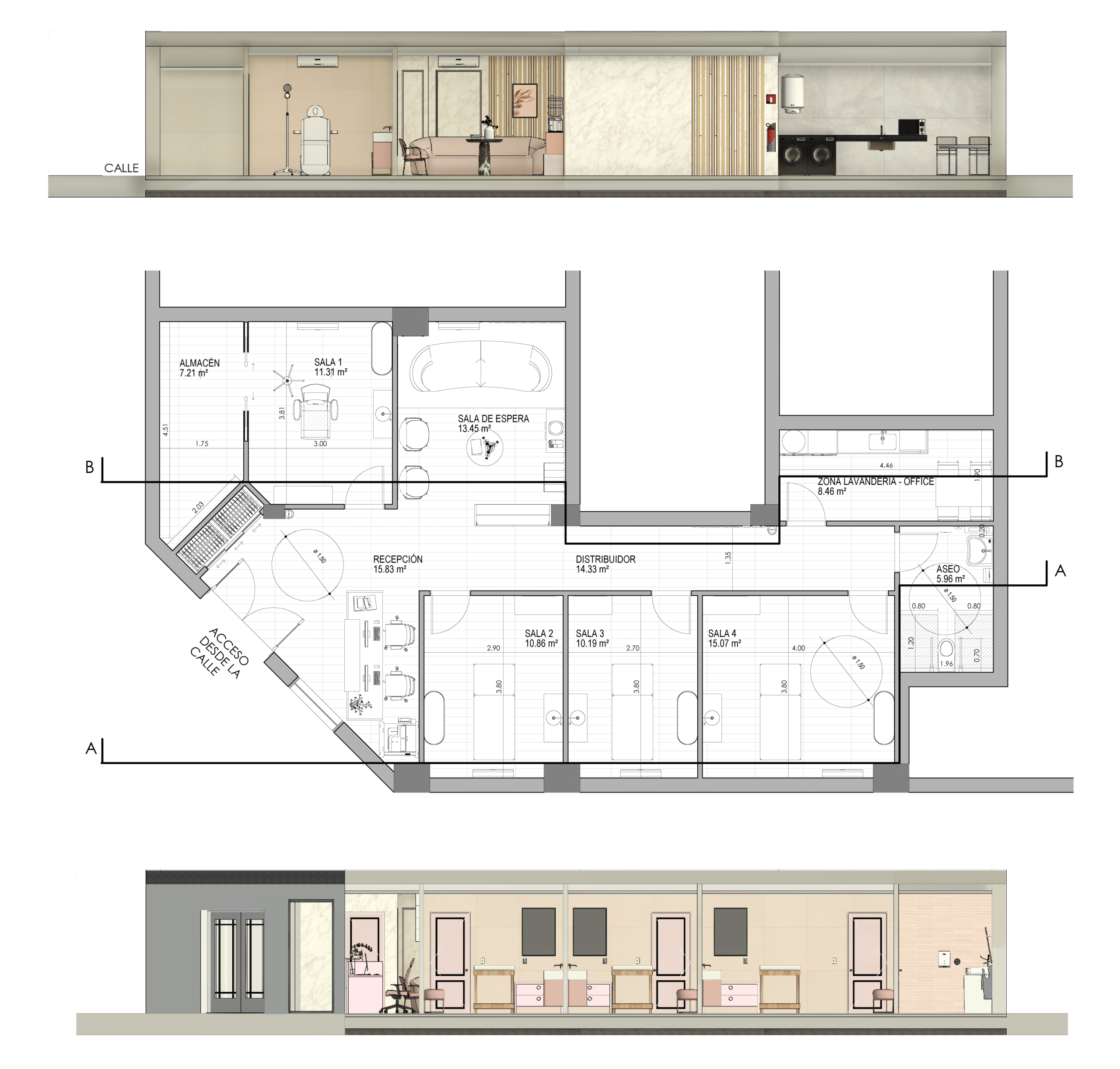
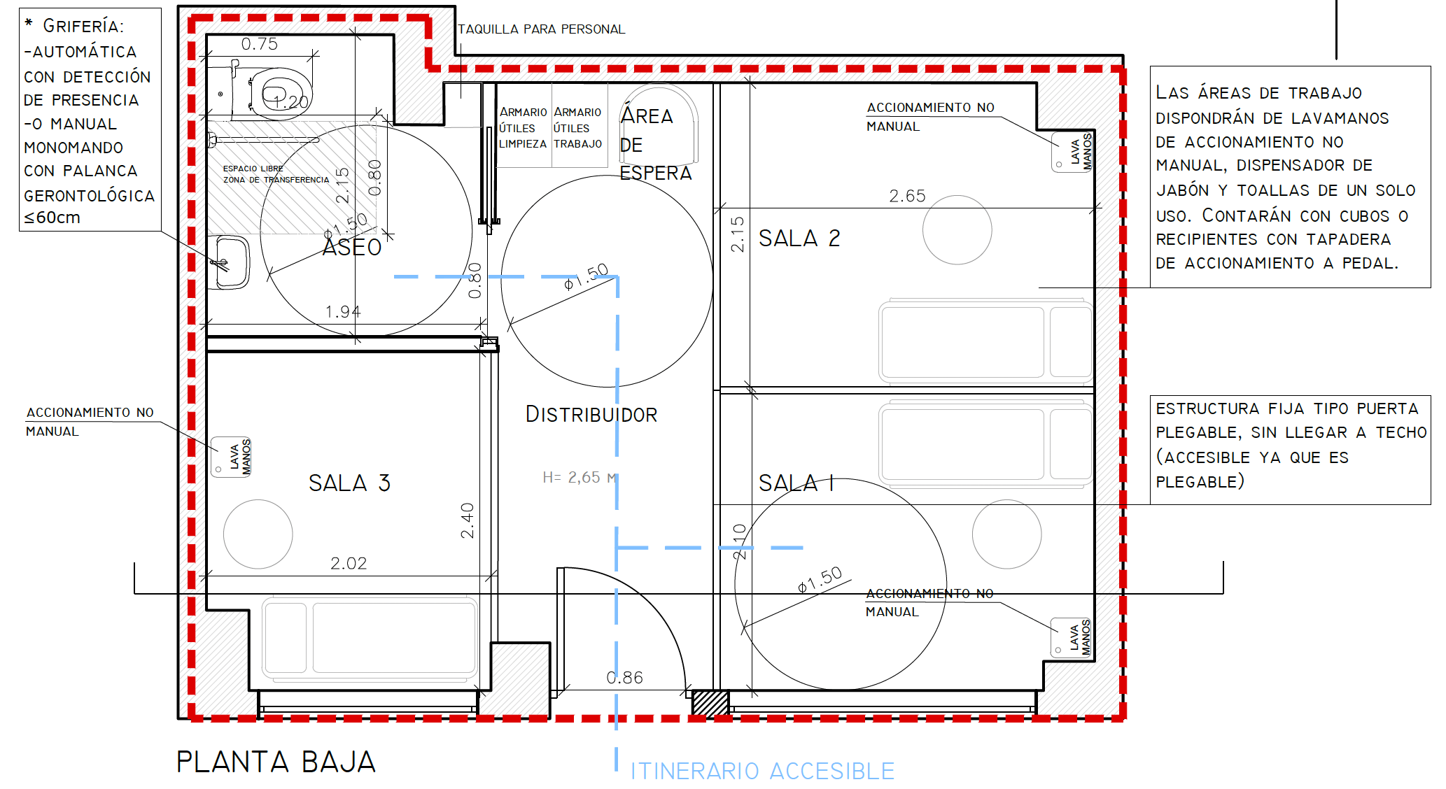
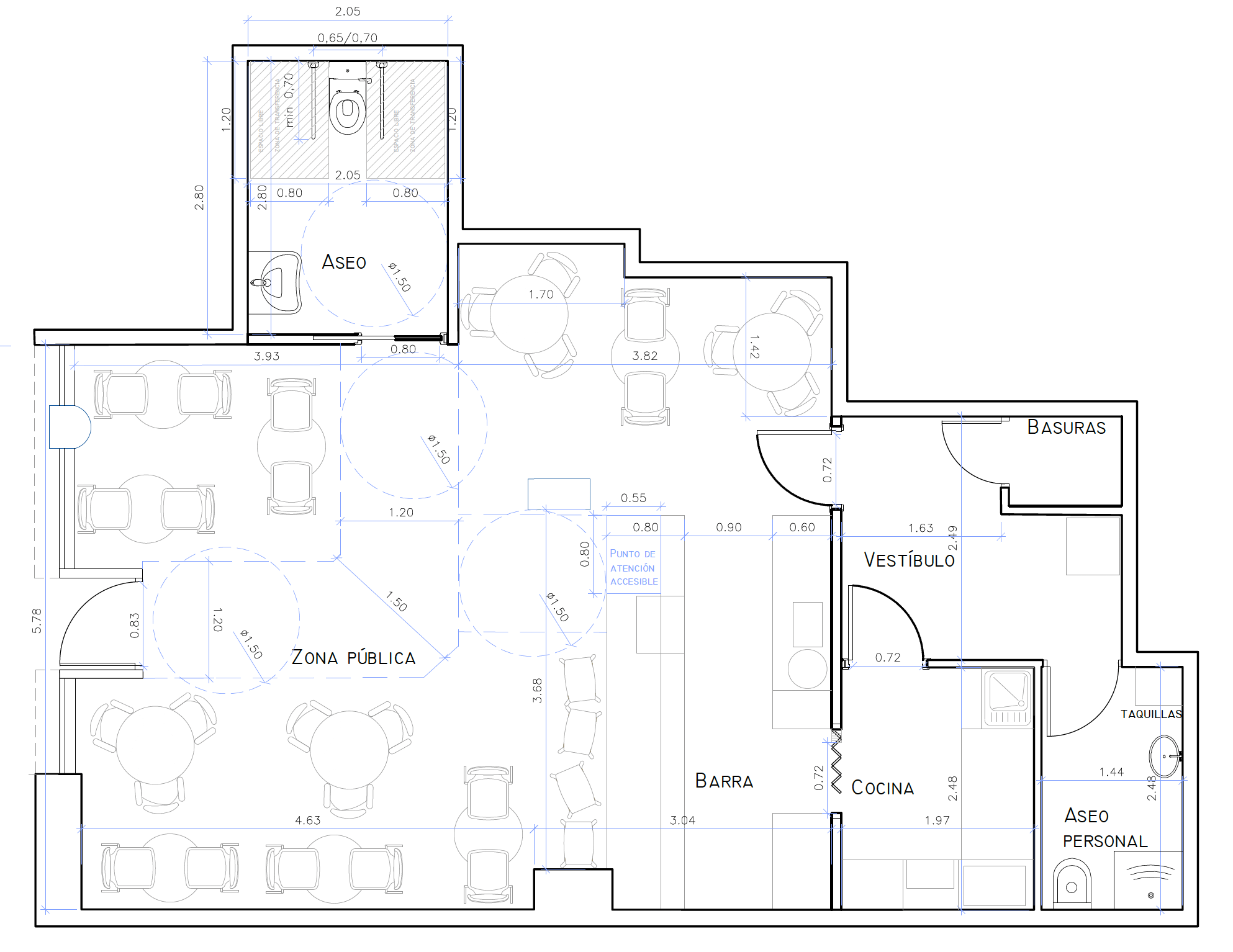
Licencia de actividad
Autoriza el uso del establecimiento para una actividad concreta, asegurando que cumple con los requisitos de habitabilidad, accesibilidad, salubridad, ventilación e iluminación.
También especifica si es necesaria la realización de un proyecto de obra. Para obtenerla, es necesario presentar un proyecto de actividad u obra en el Ayuntamiento.


